Pukekohe — Lot 25, Kohe subdivision

Lot 25, Kohe subdivision
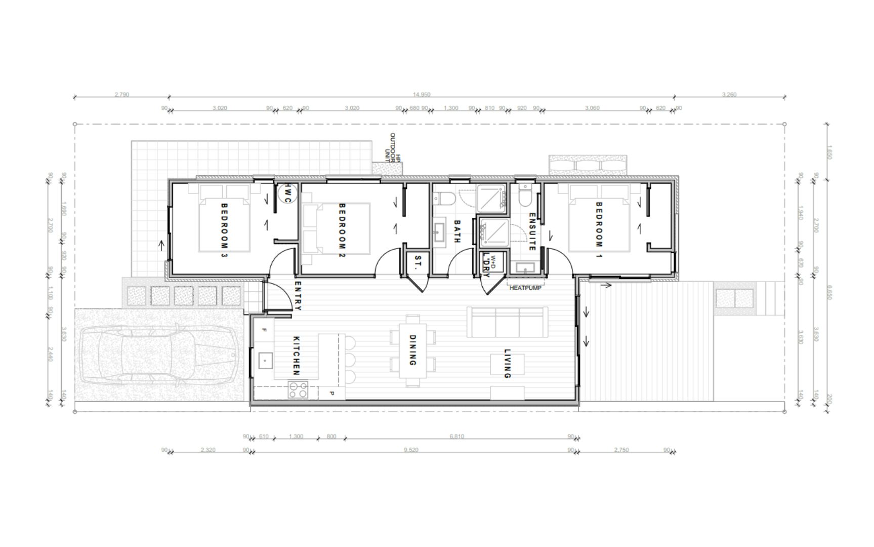
Number of bedrooms
Bedrooms 3
Number of bathrooms
Bathrooms 2
Number of living spaces
Living spaces 1
Number of toilets
Toilets 2
Carport or Garage Size
Carport or Garage Size 1
Floor size:
80m²
Section size:
179m²
Price
From $815,000

Discover Kohe – a vibrant, carefully designed new community where modern living meets comfort and style. This stunning Versatile home brings together thoughtful design, quality finishes, and unbeatable value in one complete package.

Lot 25, Kohe subdivision, Pukekohe

Move into a brand-new, all-inclusive home where comfort meets modern design. Contact our Versatile Pukekohe team today on 09 238 0696 or wlubbers@versatile.co.nz

Please note: images are for illustrative purposes and may differ from final design.

Other plans you may be interested in

Pukekohe – Lot 25, Kohe subdivision From $815,000

3

Brand Bew Home in Kohe – Smart, Modern Living 80m²

Number of bedrooms
3
Number of bathrooms
2
Number of Living Spaces
1
Carport or Garage Size
1

Set within Pukekohe’s exciting new Kohe development, you’ll enjoy a welcoming, connected community close to schools, local amenities, and the natural beauty of the Franklin area.

More

Pukekohe – Lot 84, Kohe subdivision From $789,000

2

Turnkey Package – Smart Design, Great Location 78m²

Number of bedrooms
3
Number of bathrooms
2
Number of Living Spaces
1
Carport or Garage Size
1

Step into modern living with this beautifully designed Versatile home, part of the vibrant Kohe community in Pukekohe.

More