Whitianga — 164 Kupe Drive

164 Kupe Drive
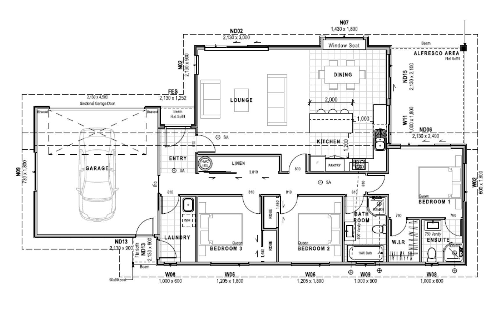
Number of bedrooms
Bedrooms 3
Number of bathrooms
Bathrooms 2
Number of living spaces
Living spaces 1
Carport or Garage Size
Carport or Garage Size 2
Floor size:
163m²
Section size:
600m²
Price
From $1,279,000

Make any changes you like and make it your own!
Wonderful opportunity to purchase a house and land package on Situated in a quiet, prime location within walking distance to Buffalo Beach, shops, and local amenities, this home truly has it all.

164 Kupe Drive, Whitianga,
Get directions

Features
- Outdoor entertaining area
- Bay window seat
- Separate laundry
- Stylish exterior

Specials
- Turnkey package, including kitchen appliances (T&Cs apply)
- Secure with just a 5% deposit.
- Flexible staged payment options available (if needed).

Other plans you may be interested in

Matarangi – Lot 337 Beaches From $890,000

23 07 18 Advantage 90 01 Web Gallery

Premium lake front home 90m²

Number of bedrooms
2
Number of bathrooms
1
Number of Living Spaces
1
Carport or Garage Size
1

Awesome Starter - Affordable H&L Package for every Scenario

More

Matarangi – Lot 206 Beaches From $895,000

23 07 17 Advantage 100 01 Web Gallery

Perfect lake front location! 100m²

Number of bedrooms
2
Number of bathrooms
1
Number of Living Spaces
1
Carport or Garage Size
1

Perfect for a holiday home, first home, retirement home or rental. This compact small home has it all and would suit most living circumstances. Most of all it's affordable and in Matarangi's new Beaches Development. Lot 206 is located on the beautiful lake front, North facing, neighbouring a reserve, and close to all amenities.
*Give Tracey a call to discuss.*
Mobile: 027 5428545
Office: 07 8688410
Email: tracey.barker@versatile.co.nz
Visit 74 Kopu Road, Kopu, Thames.

More

Matarangi – Lot 316 Beaches $989,000

23 07 17 Advantage 100 01 Plan Hero

Expedite your build with council-ready plans! 100m²

Number of bedrooms
2
Number of bathrooms
1
Number of Living Spaces
1
Carport or Garage Size
1

Can you imagine yourself in this gorgeous little home?



A perfect bach for the beach with its 2 bedrooms, 1 bath, separate WC, laundry, and single internal access garage.



This beautiful home from Versatile's Advantage Range oozes modern and charm. Located on Lot 316 in the stunning Matarangi Beaches subdivision, this Lot is north facing with beautiful lake views.

More