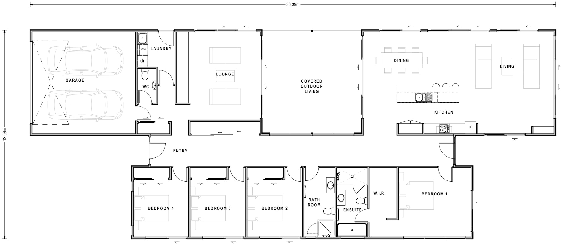
Number of bedrooms
Bedrooms 4
Number of bathrooms
Bathrooms 2
Number of living spaces
Living spaces 2
Number of toilets
Toilets 3
Carport or Garage Size
Carport or Garage Size 2
Floor size:
265m²

Clean lines and a strong architectural influence set the Tekapo apart, contributing to a home that’s sure to impress even the most discerning visitor! The covered outdoor entertaining space is a real highlight, as is the luxurious master suite, while an array of thoughtful storage solutions ensure the home is as practical as it is visually compelling.

Features
  • Architectural design
  • Covered outdoor living area
  • Galley hallway
  • Inbuilt shelving

Related Plans

Sumner Lifestyle Range 245m²

House - Lifestyle Range Sumner
Number of bedrooms
3
Number of bathrooms
2
Number of Living Spaces
2
Carport or Garage Size
2

Intelligent design and minimalist styling come together in the Sumner, a contemporary home which features a stunning, enclosed outdoor living area. Large windows flood the home with natural light and ensure you can always appreciate your view, while built-in shelving and an array of clever storage solutions help to make life that little bit easier.

View Plan