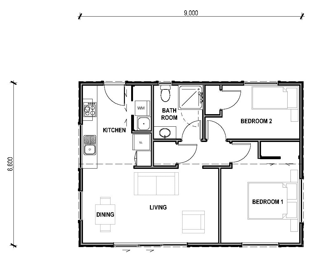
Kereru
Number of bedrooms
Bedrooms 2
Number of bathrooms
Bathrooms 1
Number of living spaces
Living spaces 1
Number of toilets
Toilets 1
Floor size:
59m²

There’s plenty of space on offer in the Kereru, a compact Pavilion-style home designed with ultimate functionality in mind! Two bedrooms (one of which could be used as an office) are joined by a generous living/dining area and a full kitchen, with sliding doors providing seamless flow outside.

Features
  • Pavilion-style home
  • Two bedrooms
  • Open plan living

Related Plans

Quail Freedom Range 32m²

Number of bedrooms
1
Number of bathrooms
1
Number of Living Spaces
1

This thoughtfully-planned studio is fully self-contained and delivers everything you need for compact living. Ideal for singles, teens or as extra accommodation for paying guests, this 32m2 studio features an open plan bedroom/living space as well as a kitchenette, an ensuite and excellent storage.

View Plan

Ngaio Freedom Range 57m²

Number of bedrooms
2
Number of bathrooms
1
Number of Living Spaces
1

Elegant and charming, this compact cottage would make a great holiday home, rental or second dwelling for extended family members. Inside, two good-sized bedrooms are complemented by a well-appointed bathroom, while outside the cute veranda is the perfect place to sit back, relax, and watch the world go by.

View Plan