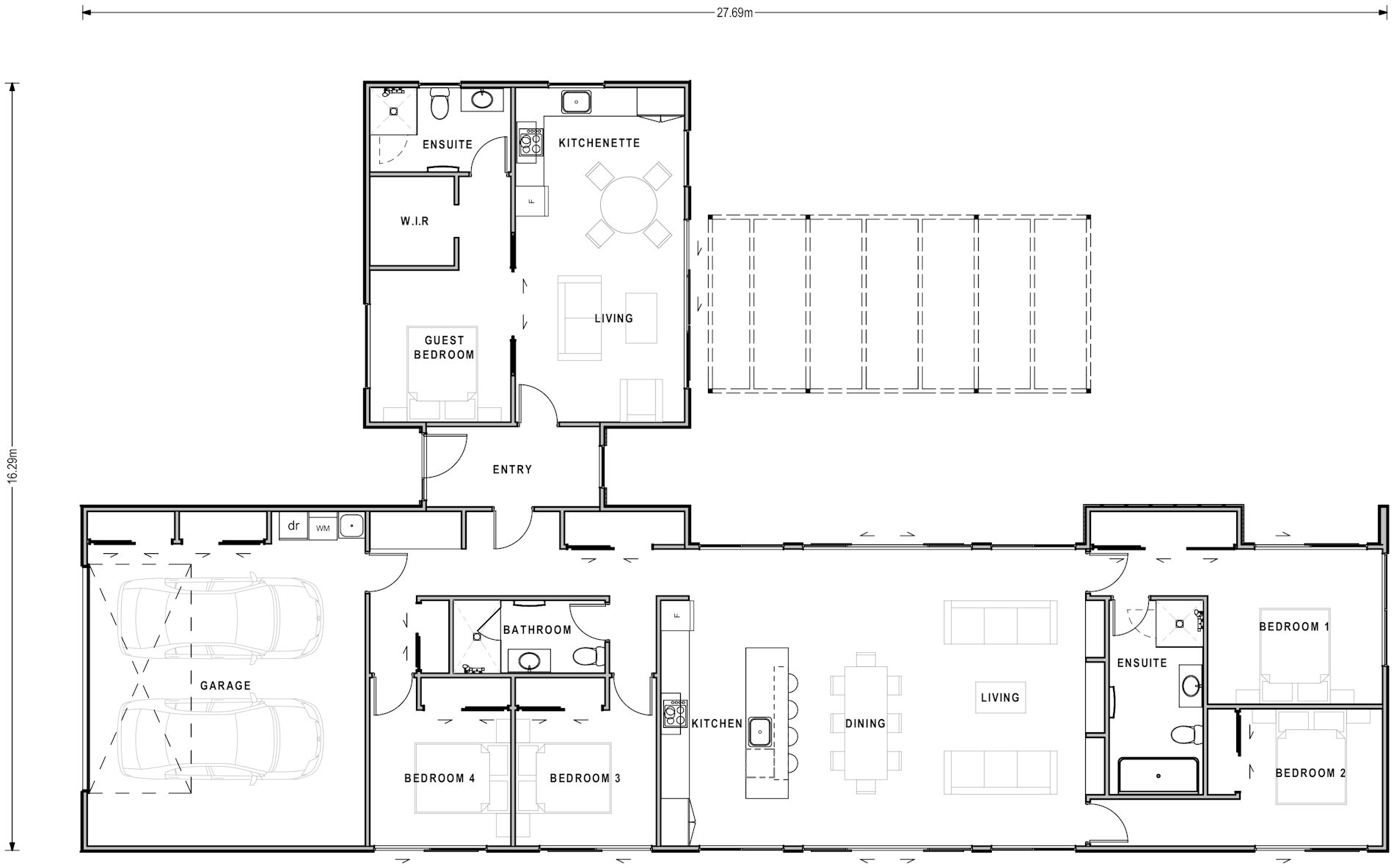
Number of bedrooms
Bedrooms 5
Number of bathrooms
Bathrooms 3
Number of living spaces
Living spaces 2
Number of toilets
Toilets 3
Carport or Garage Size
Carport or Garage Size 2
Floor size:
250m²

Sleek and architectural in its form, the Hadlee offers ultimate flexibility! Turn right in the entrance for a four-bedroom home complete with a large living space which enjoys views from either side. Or, turn left and be welcomed into a fully self-contained one-bedroom apartment with a good-sized kitchen and generously proportioned living area. Add a pergola for some contemporary outdoor living space.

Features
  • Self-contained apartment for extended family or additional income
  • See-through living space
  • Contemporary exterior
  • Optional pergola extension

Related Plans

Hillary Family Range 193m²

House - Family Range Hillary
Number of bedrooms
4
Number of bathrooms
2
Number of Living Spaces
1
Carport or Garage Size
2

The strong, clean lines of this contemporary four-bedroom home ensure it will be a standout on any street! Two separate bedroom wings make the Hillary a great choice as a holiday home, while the views from the open-plan living area and the family lounge mean you’ll always be able to appreciate your surroundings.

View Plan