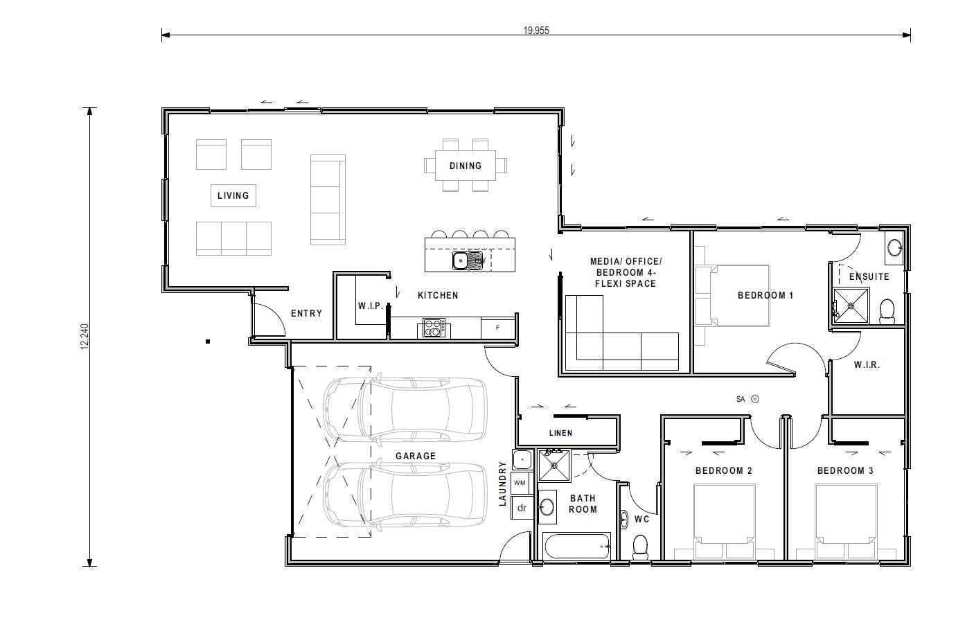
Finn
Number of bedrooms
Bedrooms 3
Number of bathrooms
Bathrooms 2
Number of living spaces
Living spaces 2
Number of toilets
Toilets 2
Carport or Garage Size
Carport or Garage Size 2
Floor size:
196m²

Family living has never been easier! Designed to deliver ultimate flexibility, the Finn features a large living/dining area, a well-positioned kitchen and three good-sized bedrooms. From there, the choice is yours – turn the extra flexi space into a second lounge, set-up a home office, or evolve it into a fourth bedroom as your family grows. However you decide to proceed, one thing’s for sure - this is a home that will serve you well for years to come!

Features
  • Flexi room
  • Great indoor/outdoor flow
  • Well-configured for ‘regular’ shaped sites

Related Plans

High Metro Range 178m²

Number of bedrooms
3
Number of bathrooms
2
Number of Living Spaces
1
Carport or Garage Size
2

You’ll fall head-over-heels for the High, a compact design with plenty of traditional charm and loads of contemporary features. There’s lots to love inside, including a luxurious master bedroom (with walk-in robe and ensuite), a study nook and a fabulous feature bay window. If you really want to dial-up the character you could choose exterior cladding and detailing inspired by the classic Kiwi villa – it’s really up to you!

View Plan