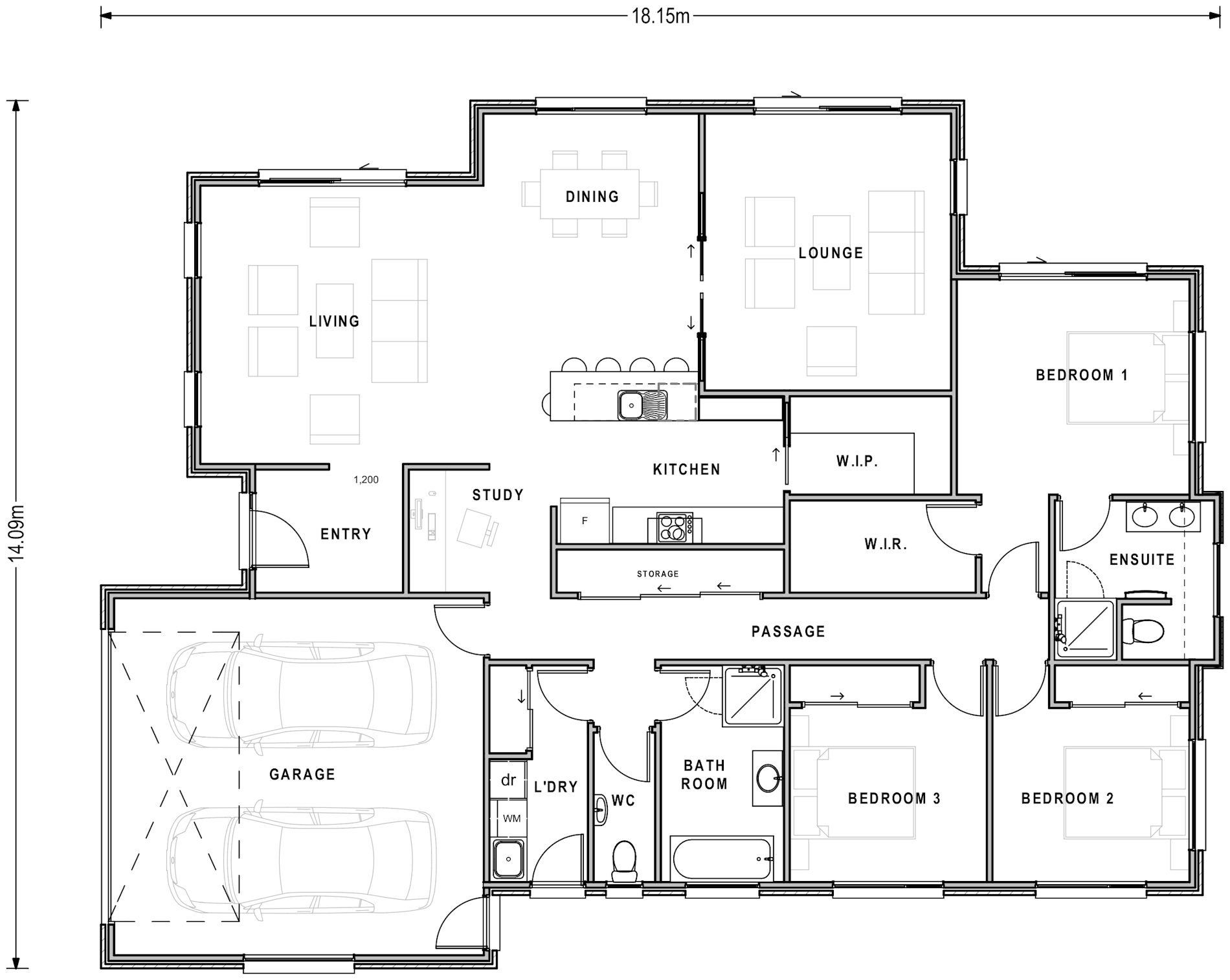
Britten
Number of bedrooms
Bedrooms 3
Number of bathrooms
Bathrooms 2
Number of offices
Offices 1
Number of living spaces
Living spaces 2
Number of toilets
Toilets 2
Carport or Garage Size
Carport or Garage Size 2
Floor size:
211m²

Those looking to downsize without downgrading will be drawn to the Britten, a luxury three-bedroom home featuring plenty of creature comforts. The large open-plan living area is complemented by a separate media lounge, while the chef’s kitchen (with walk-in pantry) offers everything the avid foodie looks for!

Features
  • Kitchen with feature storage
  • Expansive open-plan living
  • Separate laundry

Related Plans

Rangitata Lifestyle Range 252m²

Number of bedrooms
4
Number of bathrooms
2
Number of Living Spaces
2
Carport or Garage Size
2

Life is easy in the Rangitata, a home where everything has been designed to flow. The light-filled kitchen is the centrepiece of the home, with a variety of open-plan and separate living areas offering ultimate versatility. Parents will love the luxurious master bedroom – complete with deluxe his-and-hers wardrobes and a large ensuite – while an oversized double garage (with drive-thru option) completes the appeal.

View Plan