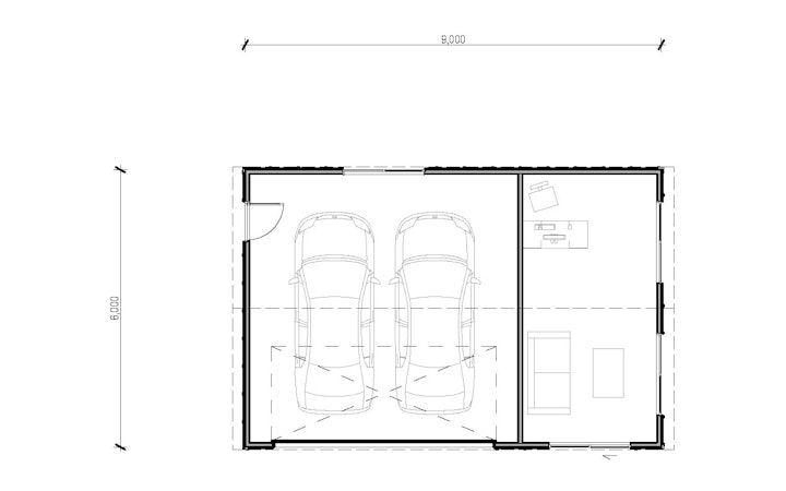
9m x 6m Garage and office

Number of living spaces
Living spaces 1
Carport or Garage Size
Carport or Garage Size 2
Floor size:
54m²

All sleepouts can come in a variety of external colours, get in touch with your local Versatile team for options.

Your local Versatile team can handle everything from the building of your new garage / office, through to consent and landscaping. However, if you've got appropriate qualifications and DIY skills, you may decide to construct your building yourself. In that case, we'll supply you with a kitset containing everything that you need to construct the shell of the building. 

 

Features
  • Double garage
  • Office
  • Sitting area
  • Timber board and batten

Other plans you may be interested in

4.8m x 3.6m Sleepouts 17m²

Sleepout with Ensuite 4.8x3.6
Number of bedrooms
1
Number of bathrooms
1

All sleepouts can come in a variety of external colours, get in touch with your local Versatile team for options.



Your local Versatile team can handle everything from the building of your new sleepout, through to consent and landscaping. However, if you've got appropriate qualifications and DIY skills, you may decide to construct your sleepout yourself. In that case, we'll supply you with a kitset containing everything that you need to construct the shell of the building. 



 

View More

4.2m x 3.6m Sleepouts 15m²

Sleepout 4 v3.2x3.6
Number of bedrooms
1

All sleepouts can come in a variety of external colours, get in touch with your local Versatile team for options.



Your local Versatile team can handle everything from the building of your new sleepout, through to consent and landscaping. However, if you've got appropriate qualifications and DIY skills, you may decide to construct your sleepout yourself. In that case, we'll supply you with a kitset containing everything that you need to construct the shell of the building. 



 

View More