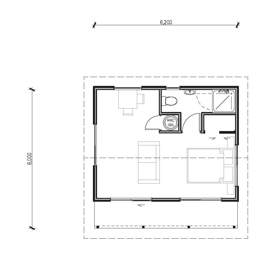
6.2m x 4.8m

Number of bedrooms
Bedrooms 1
Number of bathrooms
Bathrooms 1
Number of living spaces
Living spaces 1
Number of toilets
Toilets 1
Floor size:
30m²

All sleepouts can come in a variety of external colours, get in touch with your local Versatile team for options.

Your local Versatile team can handle everything from the building of your new sleepout, through to consent and landscaping. However, if you've got appropriate qualifications and DIY skills, you may decide to construct your sleepout yourself. In that case, we'll supply you with a kitset containing everything that you need to construct the shell of the building. 

 

 

Features
  • Spacious
  • Superclad cladding
  • Ensuite
  • Verandah

Other plans you may be interested in

9m x 6m Garage and office Sleepouts 54m²

Number of Living Spaces
1
Carport or Garage Size
2

All sleepouts can come in a variety of external colours, get in touch with your local Versatile team for options.



Your local Versatile team can handle everything from the building of your new garage / office, through to consent and landscaping. However, if you've got appropriate qualifications and DIY skills, you may decide to construct your building yourself. In that case, we'll supply you with a kitset containing everything that you need to construct the shell of the building. 



 

View More

4.8m x 3.6m Sleepouts 17m²

Number of bedrooms
1
Number of bathrooms
1

All sleepouts can come in a variety of external colours, get in touch with your local Versatile team for options.



Your local Versatile team can handle everything from the building of your new sleepout, through to consent and landscaping. However, if you've got appropriate qualifications and DIY skills, you may decide to construct your sleepout yourself. In that case, we'll supply you with a kitset containing everything that you need to construct the shell of the building. 



 

View More