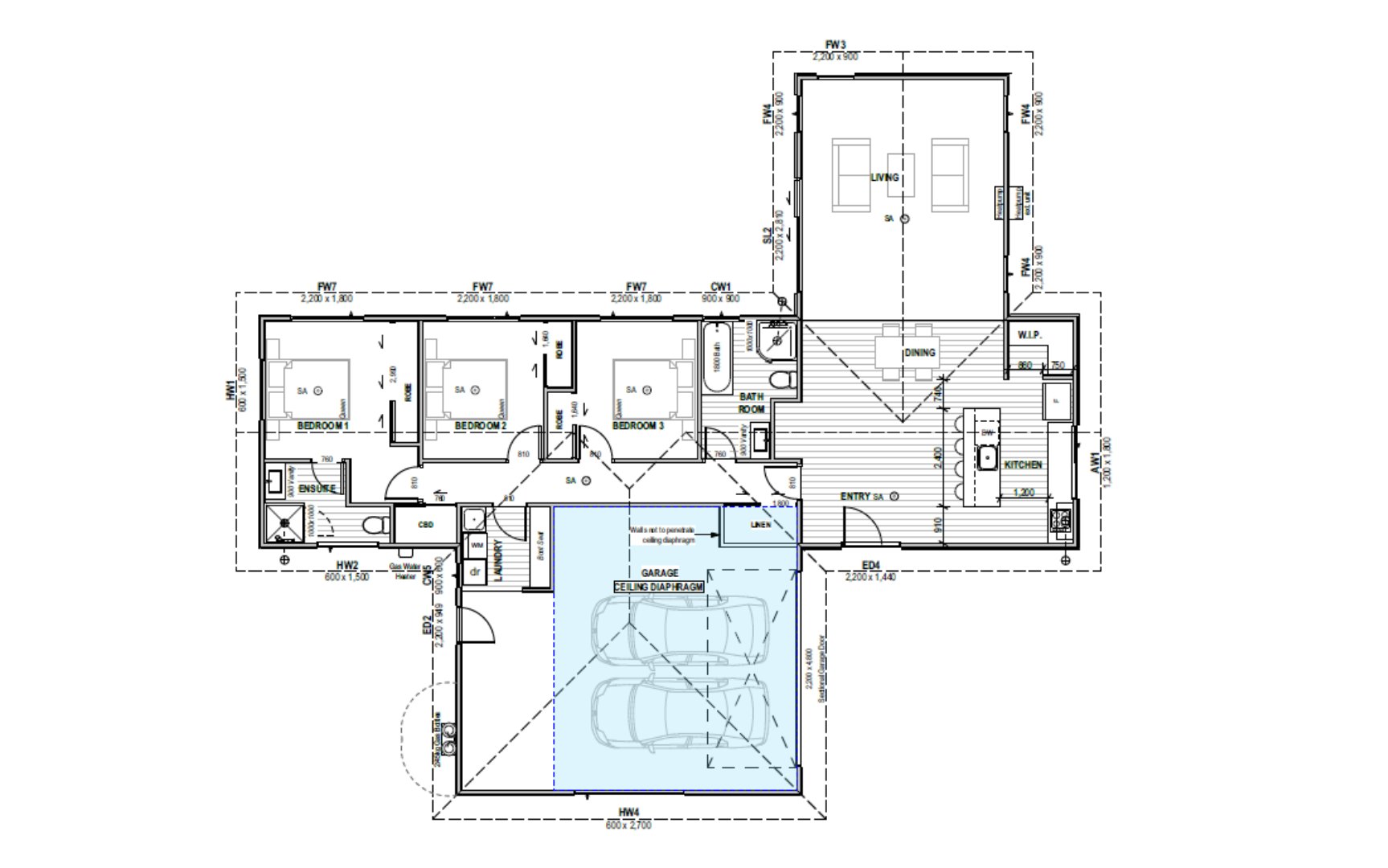
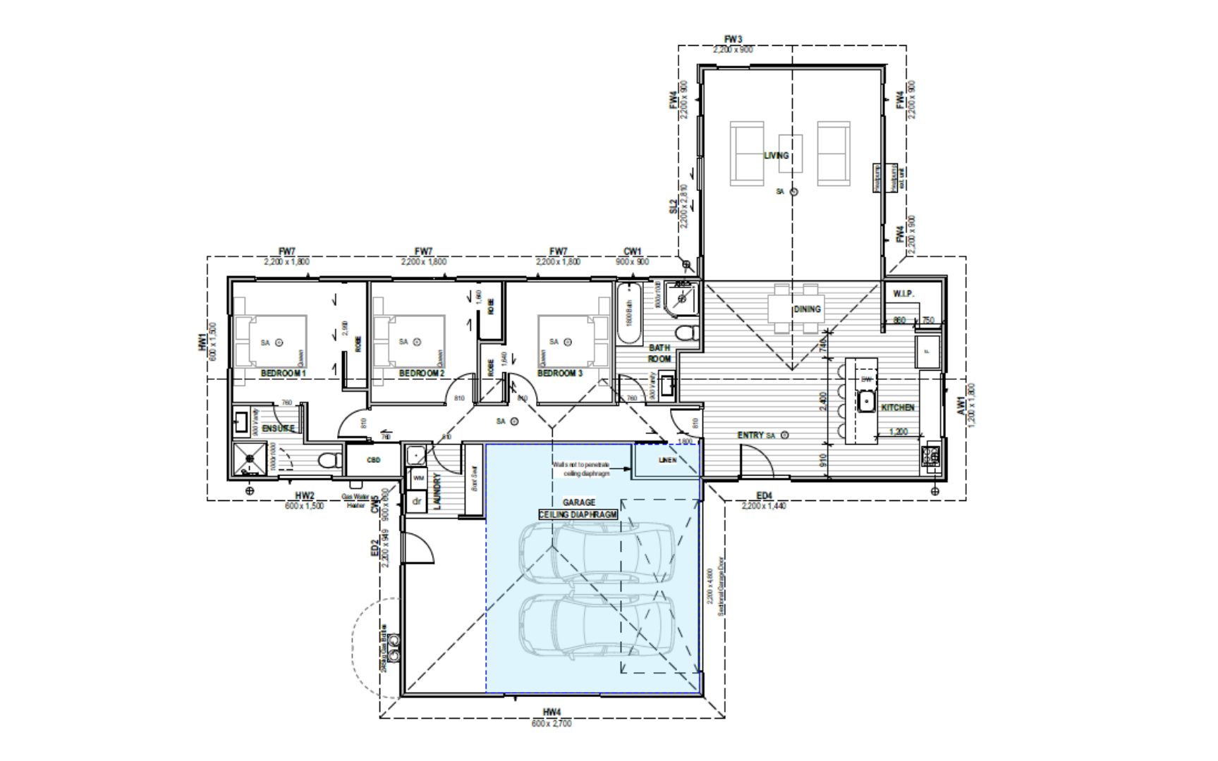
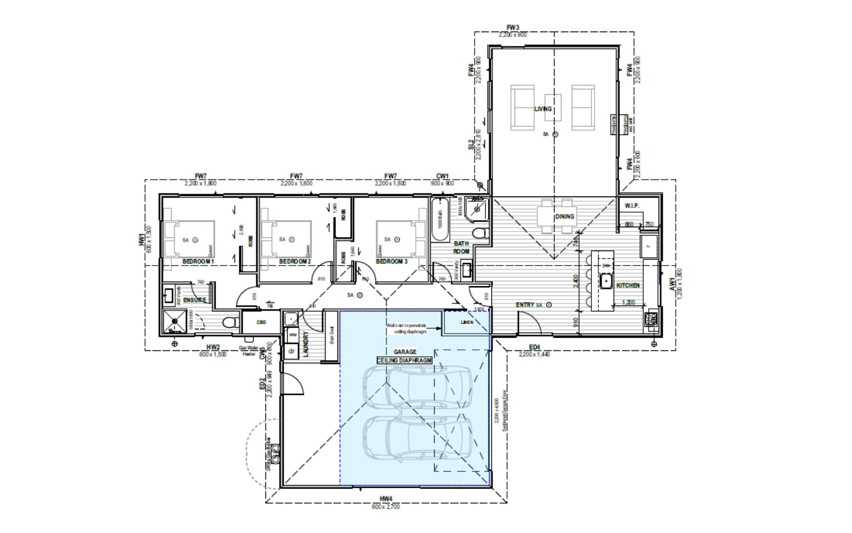
Palmerston North — Atlantic Drive (#4)

Atlantic Drive (#4)
Number of bedrooms
Bedrooms 3
Number of bathrooms
Bathrooms 2
Number of living spaces
Living spaces 1
Number of toilets
Toilets 2
Carport or Garage Size
Carport or Garage Size 2
Floor size:
196m²
Section size:
602m²

Welcome to your brand-new 3-bedroom home in the sought-after Summerhill neighbourhood of Palmerston North. Designed for modern living, this beautifully crafted home offers the perfect balance of style, comfort, and convenience.
Contact Helen Fink at 021 119 2542 today!

Atlantic Drive, Fitzherbert
Get directions

Features:

  • Three double bedrooms
  • Two contemporary bathrooms
  • Open-plan living and dining area—perfect for entertaining
  • Large walk-in pantry for all your storage needs
  • Separate laundry area for added practicality
  • Peaceful yet central location
  • Tiled bathrooms
  • Designer kitchen
  • Fully landscaped
  • Stone benchtops

Other plans you may be interested in

Palmerston North – Atlantic Drive (#1) 175m²

1.stage 7 Atlantic Drive Eden plan with a double garage mAR 25 2

Brand New 4-Bedroom Home on Atlantic Drive

Number of bedrooms
4
Number of bathrooms
2
Number of Living Spaces
1
Carport or Garage Size
2

Situated in the Fitzherbert suburb of Palmerston North. An area known for its new residential developments and proximity to various amenities.

More

Palmerston North – Atlantic Drive (#2) 184m²

2 v2.Atlantic Drive.Stage 7 Kauri Plan Mar 25 2

Modern Family Living on Atlantic Drive

Number of bedrooms
4
Number of bathrooms
2
Number of Living Spaces
1
Carport or Garage Size
2

The Kauri is a brand-new 4-bedroom home in Summerhill, Palmerston North, offering style, space, and convenience. Close to top schools, Massey University, and local amenities—perfect for families and professionals.

More

Palmerston North – Atlantic Drive (#3) 180m²

3.Atlantic Drive Stage 7 King plan Mar 25 2

Lifestyle Family Living on Atlantic Drive

Number of bedrooms
3
Number of bathrooms
2
Number of Living Spaces
1
Carport or Garage Size
2

This newly built home in the sought-after Summerhill neighbourhood offers modern living at its finest. With three spacious bedrooms and two stylish bathrooms, it’s perfect for families or professionals seeking comfort and convenience.

More

Palmerston North – Atlantic Drive (#4) 196m²

4.Atlantic Drive Stage 7 Modified Bellbird Mar 25 2

Designed for modern living on Atlantic Drive

Number of bedrooms
3
Number of bathrooms
2
Number of Living Spaces
1
Carport or Garage Size
2

Welcome to your brand-new 3-bedroom home in the sought-after Summerhill neighbourhood of Palmerston North. Designed for modern living, this beautifully crafted home offers the perfect balance of style, comfort, and convenience.

More