Marton — Lot 3, Campbell Place

Lot 3, Campbell Place
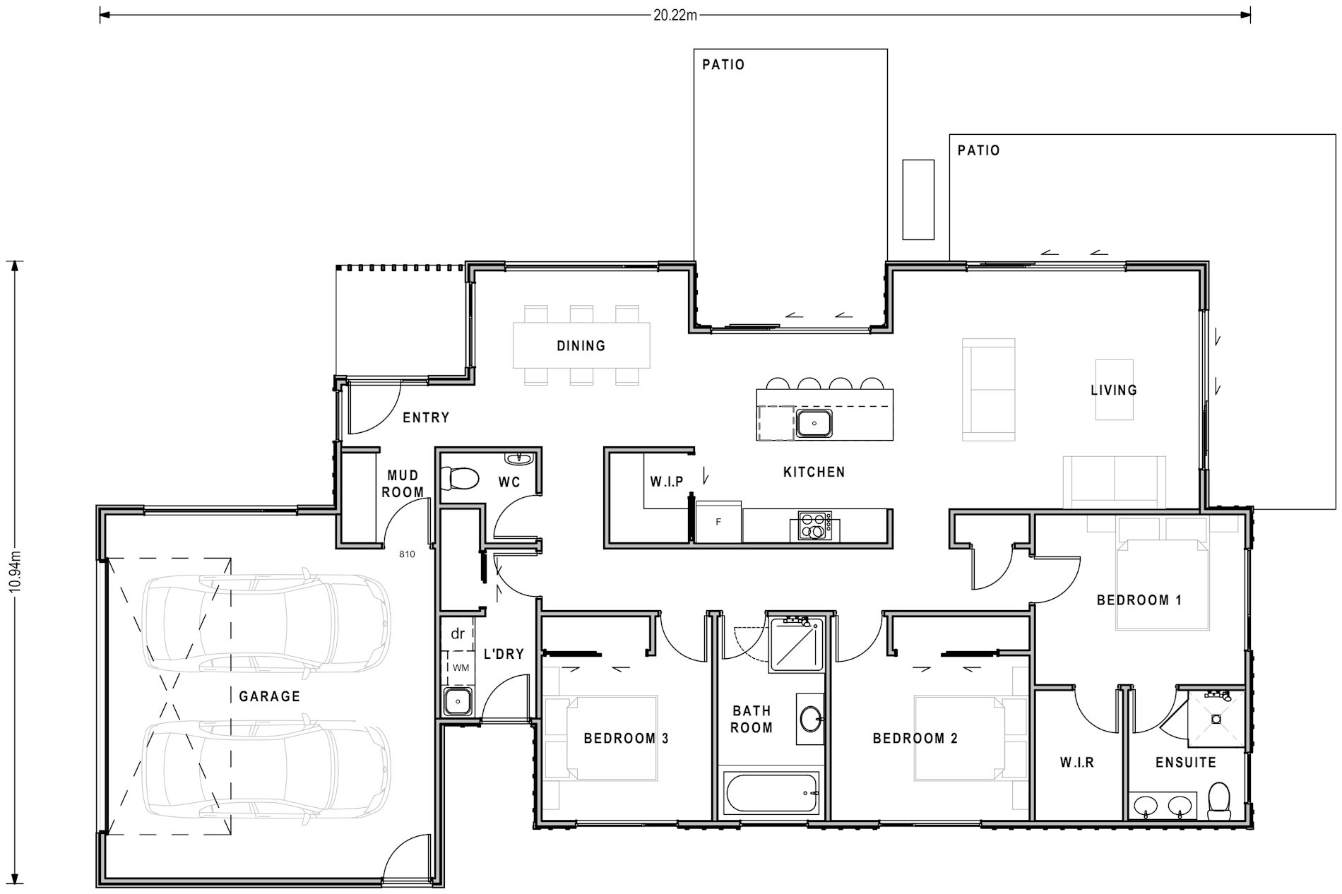
Number of bedrooms
Bedrooms 3
Number of bathrooms
Bathrooms 2
Number of living spaces
Living spaces 1
Number of toilets
Toilets 2
Carport or Garage Size
Carport or Garage Size 2
Floor size:
173m²
Section size:
685m²
Price
$804,939

Versatile is proud to present to the market this home and land package that is sure to be a hit. Set in the new Campbell Place subdivision off Bredins Line. Get in touch today for full specifications of the build.
Contact Nick Bakker from Versatile Wanganui today!
M. 0277504768 | P. 063482471
E. nick@versatilewanganui.co.nz

Campbell Place, Marton
Get directions

Cooking, eating and relaxation spaces are all clearly defined in this new home on offer, while excellent indoor/outdoor flow ensures you'll always feel a connection to your surroundings. The icing on the cake is the mudroom – the perfect place to hang school bags, dump work gear and store shoes as you pass through from the large double garage. Make time for things that matter this year!

Please note: images and photos are for illustrative purposes and may differ from final design.

Other plans you may be interested in

Marton – Lot 31, Campbell Place $873,013

19 04 01 Versatile Blake 001 v2

Blake, Family range 198m²

Number of bedrooms
3
Number of bathrooms
2
Number of Living Spaces
2
Carport or Garage Size
2

Luxury living with an elegant, executive home offering plenty of space, and plenty of versatility!

More

Marton – Lot 5, Campbell Place $794,160

Lambton

Lambton, Metro Range 189m²

Number of bedrooms
3
Number of bathrooms
2
Number of Living Spaces
2
Carport or Garage Size
2

Family home with great sized section

More