Palmerston North — Konini

Number of bedrooms
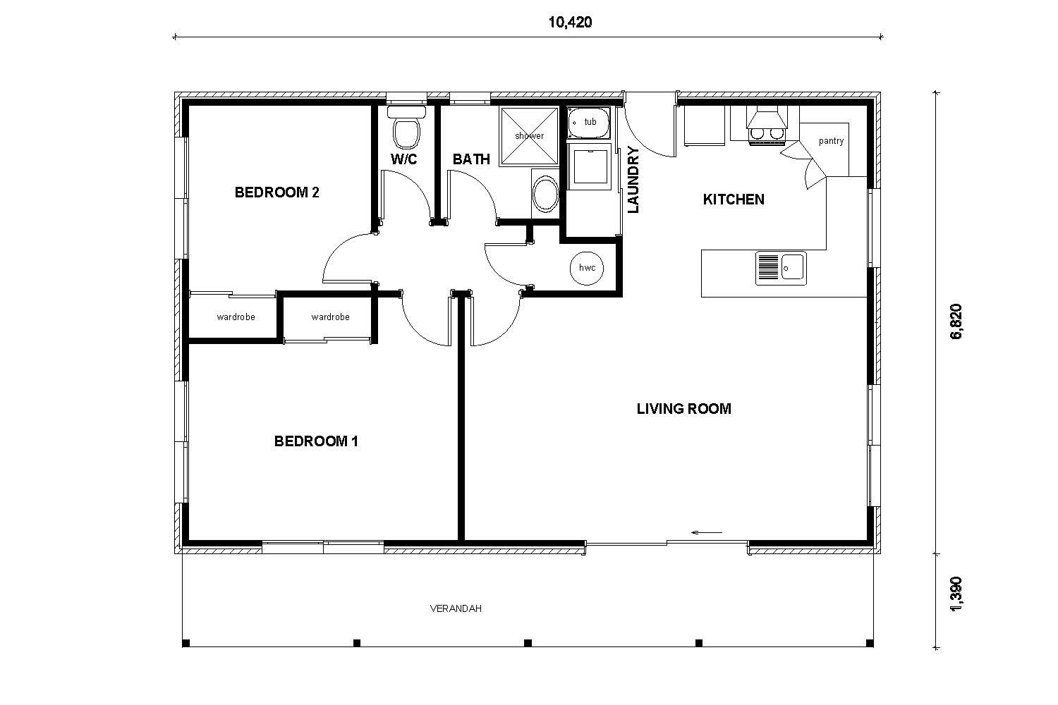
Bedrooms 2
Number of bathrooms
Bathrooms 1
Number of living spaces
Living spaces 1
Number of toilets
Toilets 1
Floor size:
67m²
948 Tremaine Avenue, Palmerston North

Open hours

23 Dec
8.00am - 12.00pm
Closed
24 Dec 2025 - 11 Jan 2026
Mon-Fri
8:00am - 4:30pm
Closed
23 Dec - 12 Jan
Get directions
Features

Crisp, clean lines define the design of this modern home, which boasts two bedrooms, a highly-functional kitchen and plenty of storage. Large stacker-slider doors offer an easy connection to the world outside.

View more show homes

Hawkes Bay – Te Anau 206m²

Number of bedrooms
3
Number of bathrooms
2
Number of Living Spaces
1
Carport or Garage Size
2

This show home is now closed.

More

Wellington – Snell (modified) 204m²

Number of bedrooms
4
Number of bathrooms
2
Number of Living Spaces
2
Carport or Garage Size
2

This show home is now closed. 

More