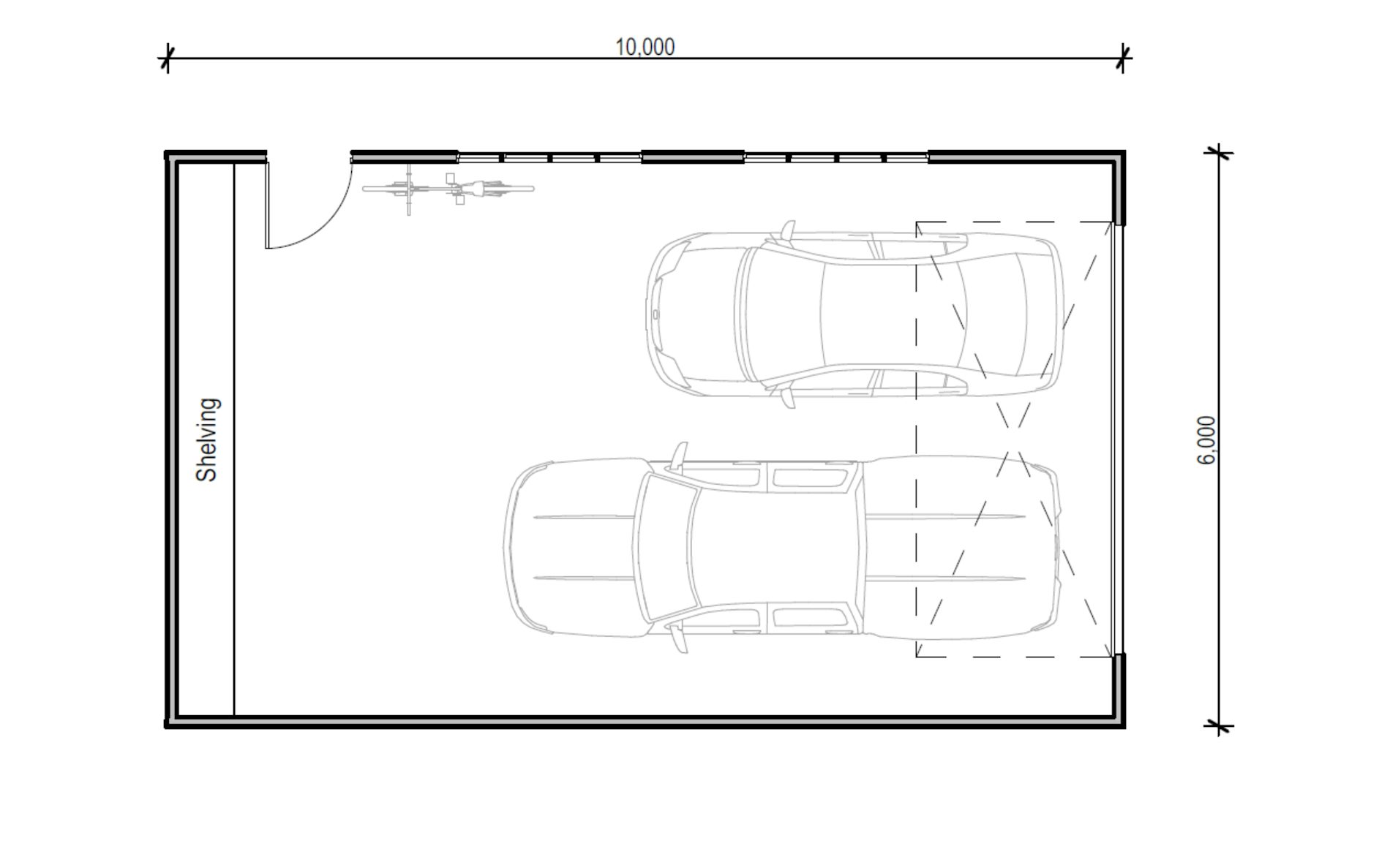
10m x 6m Double Garage Kitset

EVERYDAY RANGE
10m x 6m Double Garage Kitset
Carport or Garage Size
Carport or Garage Size 2
Floor size:
60m²
SAVE UP TO $3,280*

An affordable and smart storage solution for those looking to store large amounts of equipment, a workshop area and secure two vehicles.

*Terms, conditions and exclusions apply.

From $18,399*
Features
  • 60m2 of secure storage space for vehicles, boats, equipment and more.
  • Two sets of four-pane windows provide plenty of light.
  • Available in selected COLORSTEEL® colours.

This kitset features

Versaclad v2

Cladding

Versaclad COLORSTEEL®

6 rib Colorsteel. 15 degree gable with front soffit

Roof

COLORSTEEL® Corrugate, 15-degree gable with front soffit

Garage door

Garage door

One Futura sectional door with auto opener

2 windows

Window

Two sets of 4-pane windows

Door

Personal access door

900mm x 1925mm

Other plans you may be interested in

6m x 6m Double Garage Kitset 36m²

1000 6x6 Versaclad Gable15 Titania GreyFriars 01 1
From $13,749*
Carport or Garage Size
2

This double garage, finished in Versaclad, delivers a budget-friendly and secure storage solution for up to two vehicles.

View Plan

6m x 4m Single Garage Kitset 24m²

1000 6x4 Versaclad Gable15 Titania GreyFriars 01
From $11,199*
Carport or Garage Size
1

A budget-friendly and secure storage solution.

View Plan