Mosgiel — Lot 9 Highland Park

Lot 9 Highland Park
Number of bedrooms
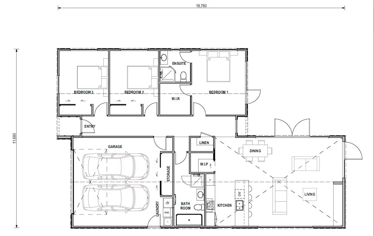
Bedrooms 4
Number of bathrooms
Bathrooms 2
Number of living spaces
Living spaces 2
Number of toilets
Toilets 2
Carport or Garage Size
Carport or Garage Size 2
Floor size:
182m²
Section size:
640m²
Price
From $1,200,000

Discover the best of modern living in the highly sought-after Highland Park subdivision with Versatile Dunedin. This thoughtfully curated house and land package combines convenience, comfort, and flexibility  with a selection of proven plans tailored to suit the section, plus the freedom to choose your own interior finishes.
Contact the Versatile Dunedin team on 03 488 5632 or mail to: infodunedin@versatile.co.nz.

Highland Park, Mosgiel

Package Highlights:

  • Modern 4-bedroom family home
  • Two bathrooms for busy mornings
  • Indoor-outdoor flow from all living areas
  • Spacious side-entry double garage
  • Well-designed kitchen with walk-in pantry
  • Abundant built-in storage
  • Land and build package only (landscaping and vehicle access not included)

Please note: images are for illustrative purposes and may differ from final design.

Other plans you may be interested in

Matarangi – Waterfront packages From $899,000

House - Metro Range Parnell

Premium lake front sections

A selection of packages available on premium lake front sections (738-772m2), with a range of design options to suit your budget.



Choose from Versatile's large range of designs from 85-350m2. From smart, contemporary one bedroom homes to generously proportioned family homes; small starter baches to stylish, elegant beach or permanent homes. Or design your own custom plan to meet your exact needs. What about a duplex design to incorporate rental/Airbnb accommodation too? The options are endless.



View Versatile's design ranges at www.versatile.co.nz/homes



Building great homes for Kiwis since 1976.  Contact Tracey today!



 

More

Otorohanga – 6 Craig Lane From $518,000

H&L package Hamilton Hamilton 6 Craig Lane (2)

6 Craig Lane, Otorohanga, Waikato 144m²

Number of bedrooms
3
Number of bathrooms
1
Number of Living Spaces
1
Carport or Garage Size
1

Country Living, Close to Town

More